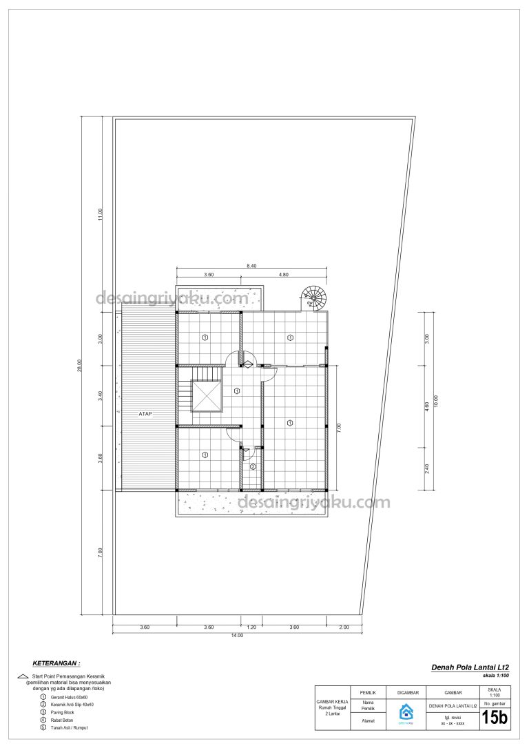
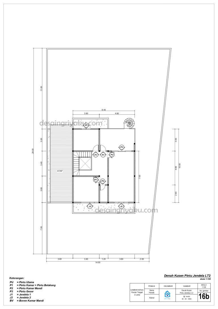
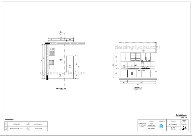
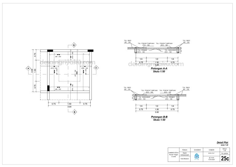
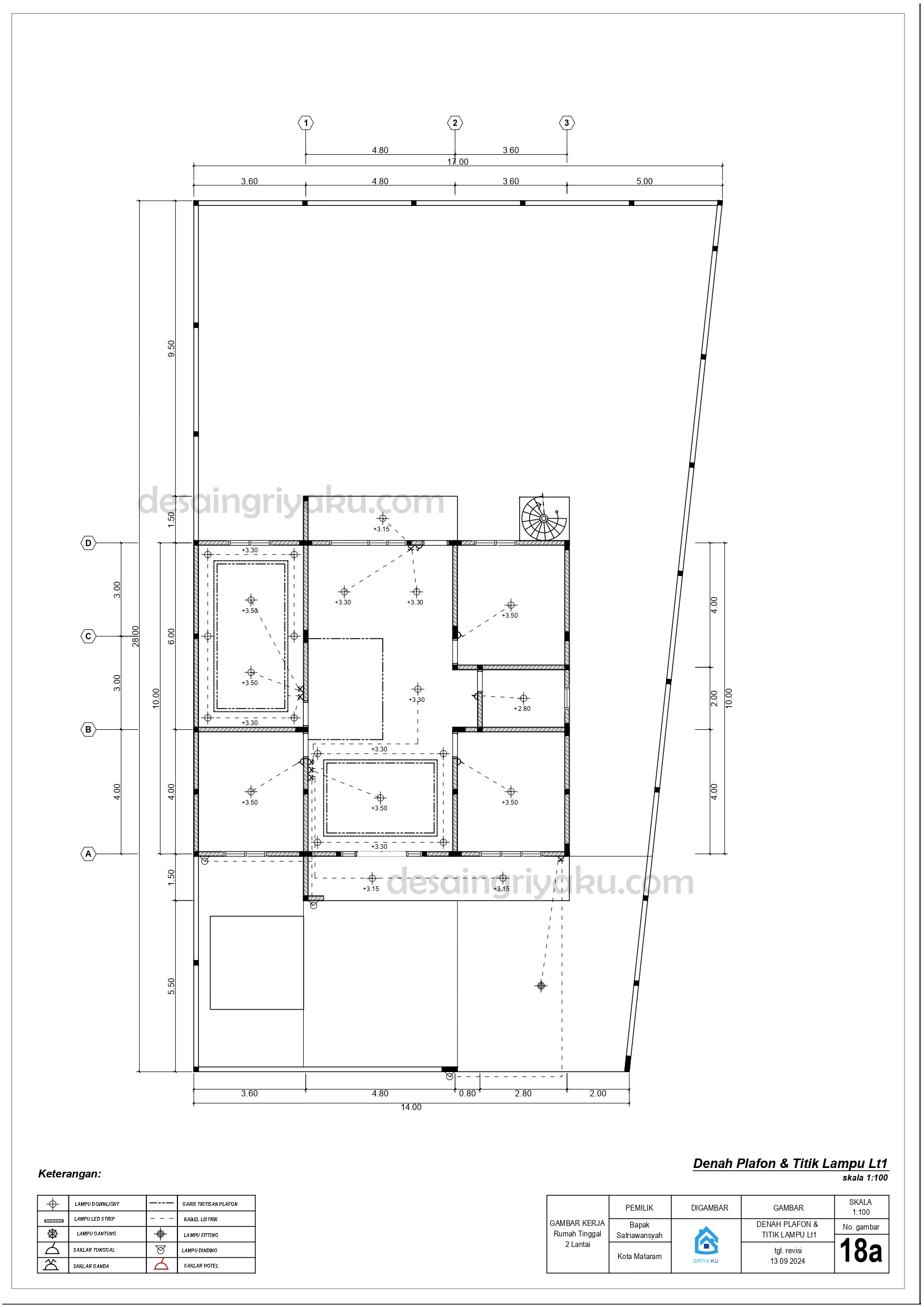
Contoh Produk Dokumen Gambar Kerja Paket 4
Gambar Kerja sendiri itu merupakan gambar yang dibutuhkan untuk pengerjaan atau pembangunan rumah tinggal. Berisi notasi -notasi yang diperlukan, seperti dimensi, elevasi , jenis material dan detail-detail konstuksi. Tanpa gambar kerja tukang akan kesulitan dalam menentukan dimensi dan elevasi bangunan.
Berikut ini adalah contoh produk dokumen gambar kerja yang akan anda peroleh jika anda memilih paket 4 (gambar kerja lengkap & rab). Dokumen yang anda peroleh terdiri dari gambar arsitektural, struktur dan mekanikal elektrikal sesuai dengan list gambar dibawah ini. Dan juga berisi RAB(Rencana Anggaran Biaya) yang berfungsi sebagai patokan perkiraan biaya pembangunan.

































































